2d Bungalow Elevation and Sectional CAD File
Description
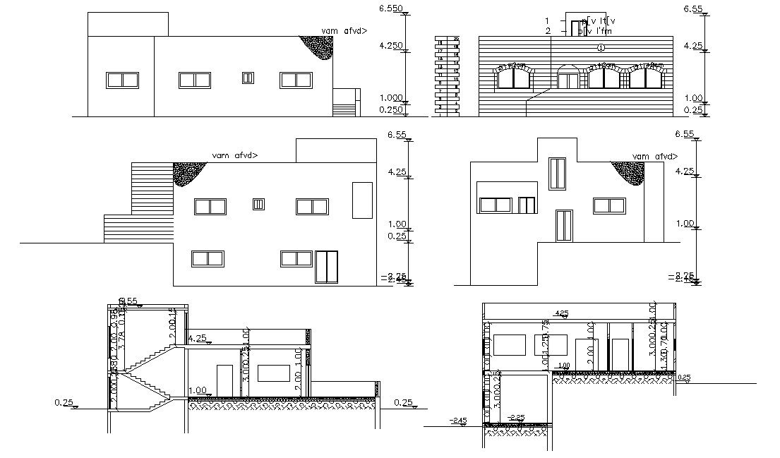
Residence Bungalow design layout architecture drawing that shows house all sides of elevation details like front elevation, sides elevation and rear elevation along with house sectional details. Download the Bungalow section and elevation design AutoCAD File.

Uploaded by:
akansha
ghatge

