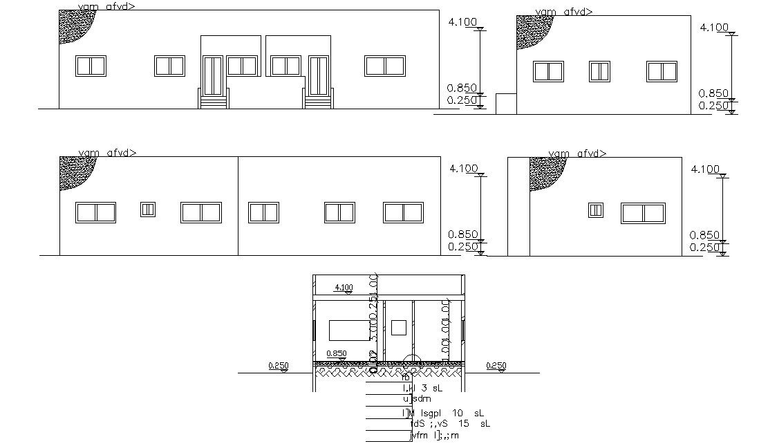
Single Storey House Section and Elevation CAD File
Description
Residential housing bungalow elevation design that shows bungalow front elevation, sides elevation, and rear elevation design along with bungalow floor leveling details, house sectional details, and various other works details. Download Bungalow elevation and a sectional CAD file for free.

Uploaded by:
akansha
ghatge

