Layout Apartment Floor CAD Plan Free Download
Description
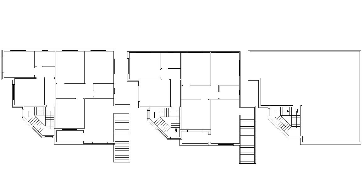
Residence Housing apartment layout design CAD plan that shows bungalow door and window annotations details, apartment floor level, staircase design, terrace layout plan, and apartment various other units details. Download Apartment layout design floor CAD plan for free.

Uploaded by:
akansha
ghatge

