G+2 Residence Apartment CAD Floor Plan
Description
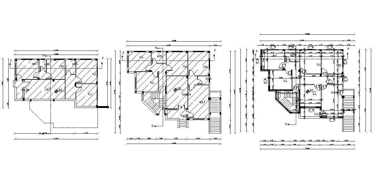
Residence Housing apartment all floor layout plan that shows bungalow ground floor fist floor and second-floor layout plan along with dimension working set, staircase design, room interior dimension set, section line, flooring design, and apartment various other utility details. Download architecture apartment design layout floor plan.

Uploaded by:
akansha
ghatge

