Residential House Electrical And Plumbing Layout CAD File

Residential House Electrical And Plumbing Layout CAD File
Profile

Uploaded by:

Poonam

Description
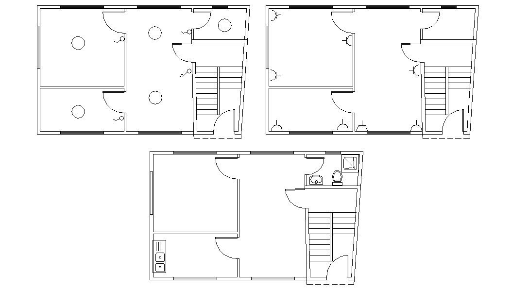
The architecture drawing provide a electrical layout in a fan point, lighting details, switchboards, and plumbing layout details. download AutoCAD format file.
Profile

Uploaded by:

Poonam

find Latest

Related Files

WhatsApp Chat