LOGIN
HOME
CATEGORIES
UPLOAD FILE
PRICING
HOUSE PLAN
ABOUT US
CONTACT US
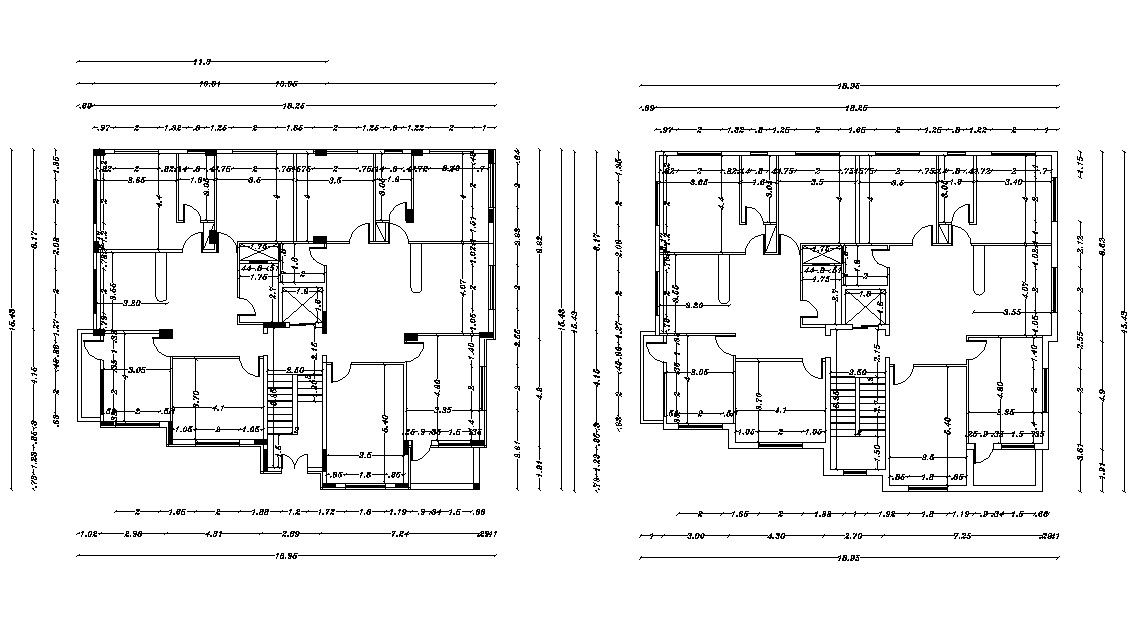
18.96 X 15.43 Meter Bungalow Drawing CAD File
Home
Categories
Architecture
Bungalow House Design
18.96 X 15.43 Meter Bungalow Drawing CAD File
Uploaded by:
Poonam
View Profile
View Profile
Description
2d drawing given details of bedroom, kitchen, master bedroom, washroom, toilet, staircase, living area, and other details. download AutoCAD format file.
File Type:
DWG
File Size:
362 KB
Category::
Architecture
Sub Category::
Bungalow House Design
type:
Gold
Uploaded by:
Poonam
View Profile
Download
Add to libary
find Latest
Related
Files