22'3"x51'5" Amazing North facing 2bhk house plan as per Vastu Shastra. Autocad DWG and Pdf file details.
Description
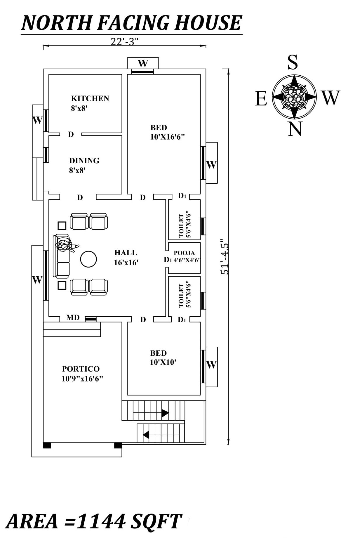
AutoCAD DWG file shows 22'3"x51'5" Amazing North facing 2bhk house plan as per Vastu Shastra. The Buildup area of this house plan is 1144 sqft. The master bedroom is in the southwest direction with the attached toilet in the West and the children's bedroom is in the northwest direction and the attached toilet is in the west direction. kitchen is placed in the southeast, Dining room available in the east. Hall and portico are available in the northeast direction. Puja room available in the west direction. Staircase placed in the northwest direction outside of the house. Download Autocad DWG and PDF file format of this house.

Uploaded by:
AS
SETHUPATHI
