20'x56' 2bhk Awesome South facing First floor House Plan As Per Vastu Shastra. Autocad DWG and Pdf file details.
Description
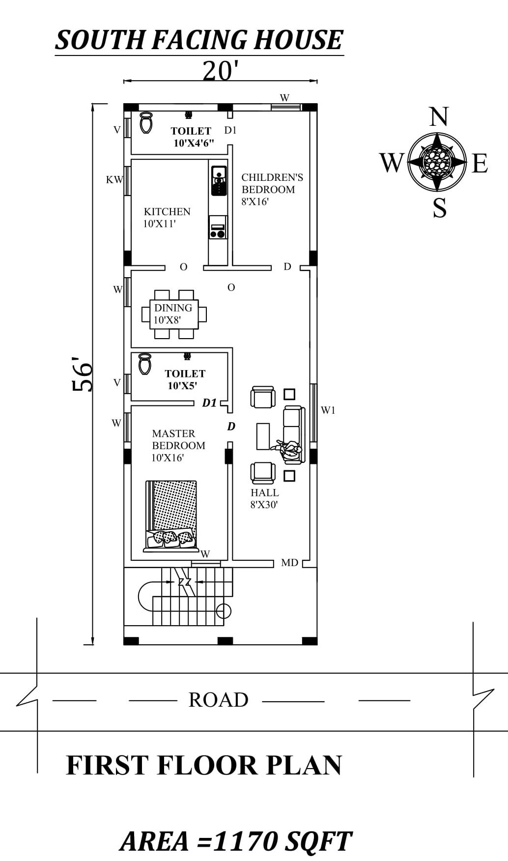
Autocad Drawing file shows 20'x56' 2bhk Awesome South facing First floor House Plan As Per Vastu Shastra. The total buildup area of this house is 1170 sqft. The kitchen is in the west direction. Dining near the kitchen is in the west direction. The Hall Placed in the southeast direction. The master bedroom is available in the southwest direction with the attached toilet is in the west. The kid's bedroom is in the Northeast direction with the attached toilet is in the northwest. A staircase is available in the southwest outside of the house. The common toilet is available in the northwest direction under stairs. Road Available in the South direction.Download Autocad Drawing file and PDF file.

Uploaded by:
AS
SETHUPATHI

