21'X66' 2bhk West facing House Plan As Per Vastu Shastra,Autocad DWG and Pdf file details.
Description
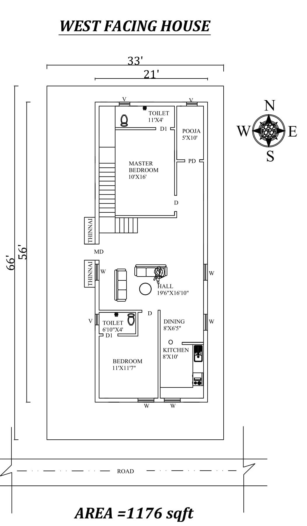
Autocad Drawing file shows 21'X66' 2bhk West facing House Plan As Per Vastu Shastra. The total buildup area of this house is 1176 sqft. The kitchen is in the Southeast direction. Dining near the kitchen is in the East direction. The puja room is in the northeast. The living area is available in the center of the house. The master bedroom is available in the north direction with the attached toilet is in the north direction. kid's bedroom is in the southwest direction. A staircase is available in the Northwest Direction inside of the house. Road Available in the south direction.Download Autocad Drawing file and PDF file.

Uploaded by:
AS
SETHUPATHI

