53'X56' Amazing west facing 2bhk house plan as per Vastu Shastra.Autocad DWG and Pdf file details.
Description
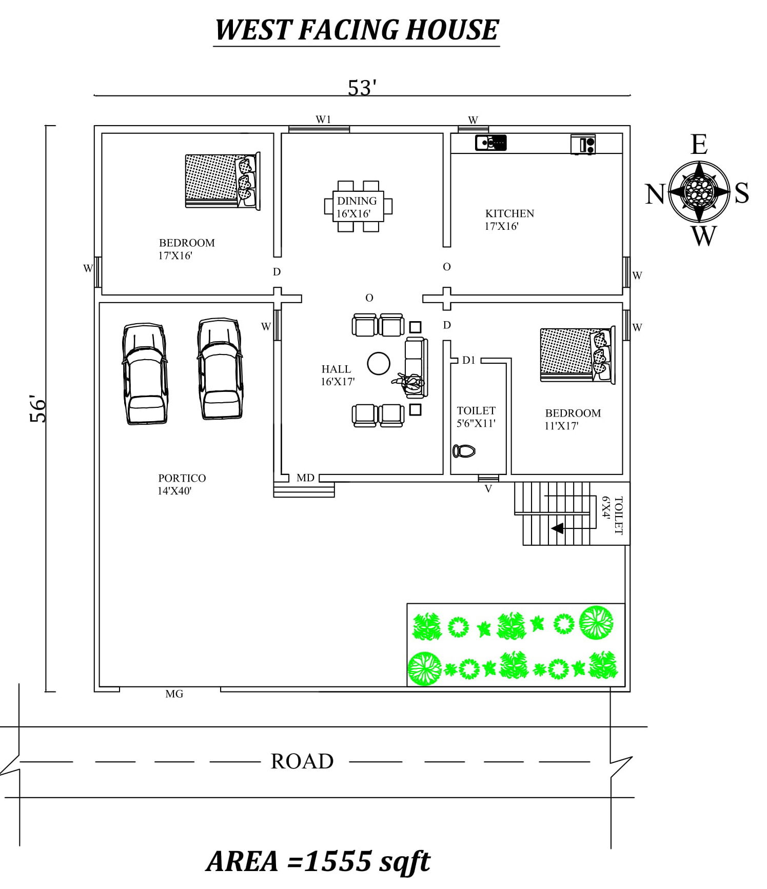
AutoCAD DWG file shows 53'X56' Amazing west facing 2bhk house plan as per Vastu Shastra. The Buildup area of this house plan is 1555 sqft. The master bedroom is in the southwest direction with the attached toilet in the West and the children's bedroom is in the northeast direction. kitchen is placed in the southeast, Dining room available in the east. Hall and portico are available in the northwest direction. Staircase placed in the southwest direction outside of the house. Download Autocad DWG and PDF file format of this house.

Uploaded by:
AS
SETHUPATHI

