25'X64'6" Amazing North facing 2bhk house plan as per Vastu Shastra. Autocad DWG and Pdf file details.
Description
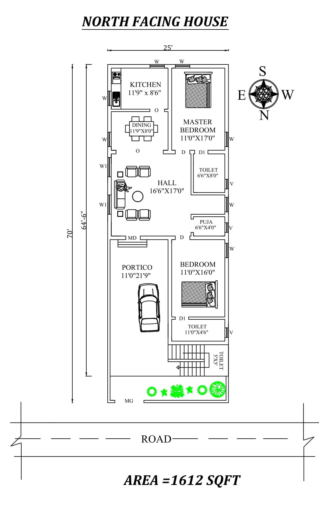
AutoCAD DWG file shows 25'X64'6" Amazing North facing 2bhk house plan as per Vastu Shastra. The Buildup area of this house plan is 1612 sqft. The master bedroom is in the southwest direction with the attached toilet in the West and the children's bedroom is in the west direction and the attached toilet is in the northwest direction. kitchen is placed in the southeast, Dining room available in the east. Hall and portico are available in the northeast direction. The puja room is in the west. Staircase placed in the northwest direction outside of the house. Download Autocad DWG and PDF file format of this house.

Uploaded by:
AS
SETHUPATHI

