29'3"X55'10" 3bhk South facing House Plan As Per Vastu ShastraAutocad DWG and Pdf file details..
Description
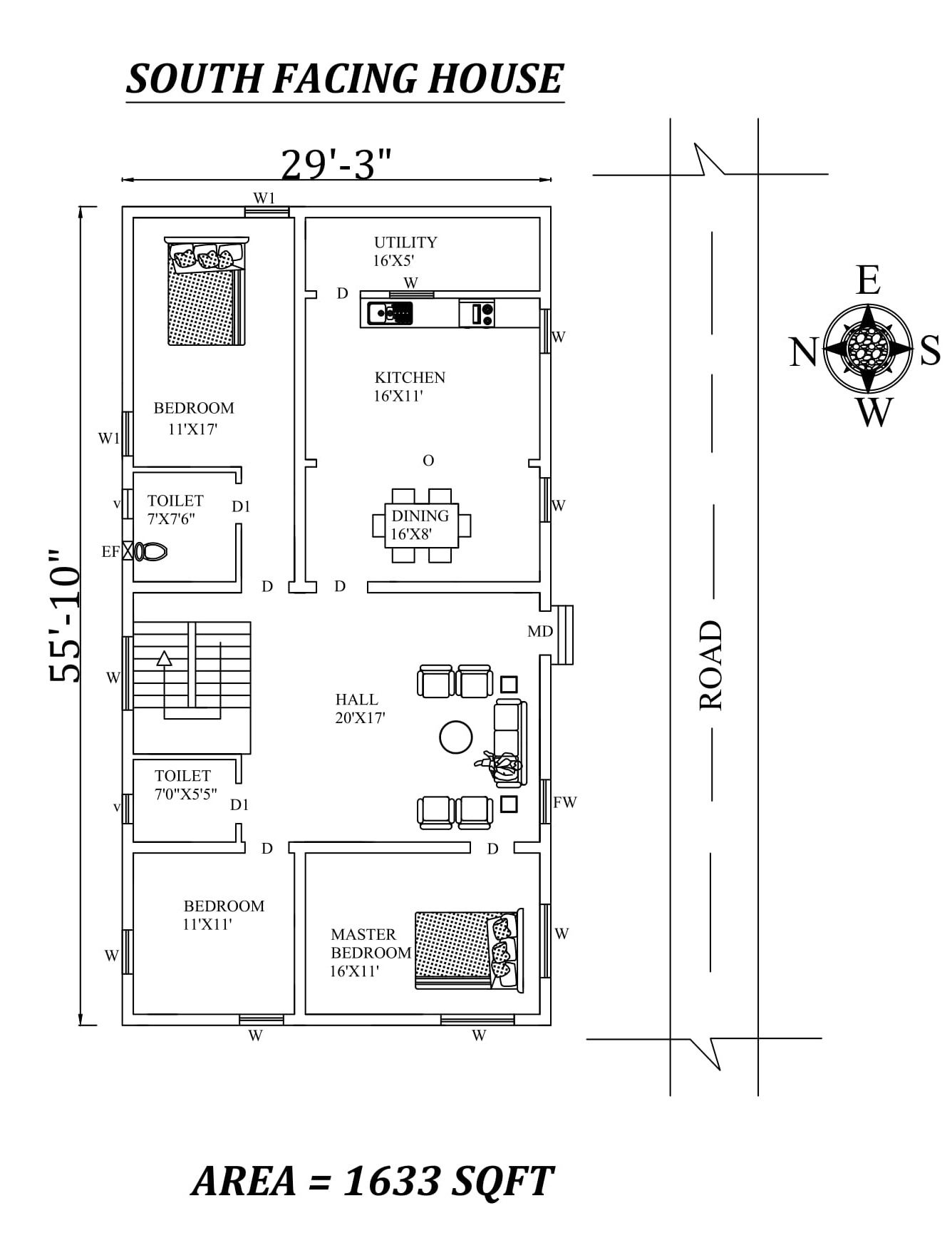
Autocad Drawing file shows Amazing 29'3"X55'10" 3bhk South facing House Plan As Per Vastu Shastra. The total buildup area of this house is 1633 sqft. The kitchen is in the south direction. Dining is placed in the south. The utility is available in the southeast. The Hall Placed in the south direction. The master bedroom is available in the southwest direction. The guest bedroom is in the Northwest direction. kid's Bedroom placed in the northeast direction with the attached toilet is in the north direction. A staircase is available in the north inside of the house. The common toilet is available in the north direction. Road Available in the South.Download Autocad Drawing file and PDF file.

Uploaded by:
AS
SETHUPATHI

