29'X58' Splendid Fully Furnished 3BHK North Facing House Plan As Per Vasthu Shastra.Autocad DWG and Pdf file details.
Description
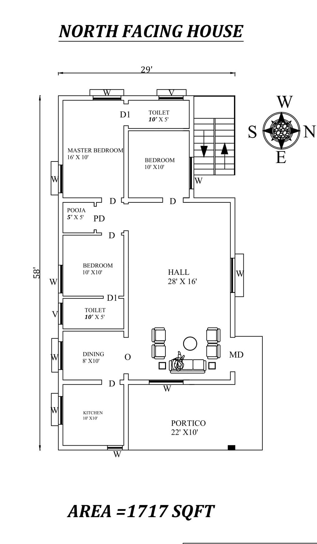
Autocad Drawing file shows 29'X58' Splendid Fully Furnished 3BHK North Facing House Plan As Per Vasthu Shastra. The total buildup area of this house is 1717 sqft. The kitchen is in the southeast direction. Dining near the kitchen is in the south direction. The puja room is in the south. The Hall Placed in the Northeast direction. The master bedroom available in the southwest direction with the attached toilet is in the west direction. kid's bedroom is in the south direction with the attached toilet available in the south direction. The guest bedroom is available in the west direction. A staircase is available in the northwest outside of the house. Portico is available in the northeast direction of the house. Download Autocad Drawing file and PDF file.

Uploaded by:
AS
SETHUPATHI

