53'X56' Marvelous 2bhk West facing House Plan As Per Vastu Shastra. Autocad DWG and Pdf file details.
Description
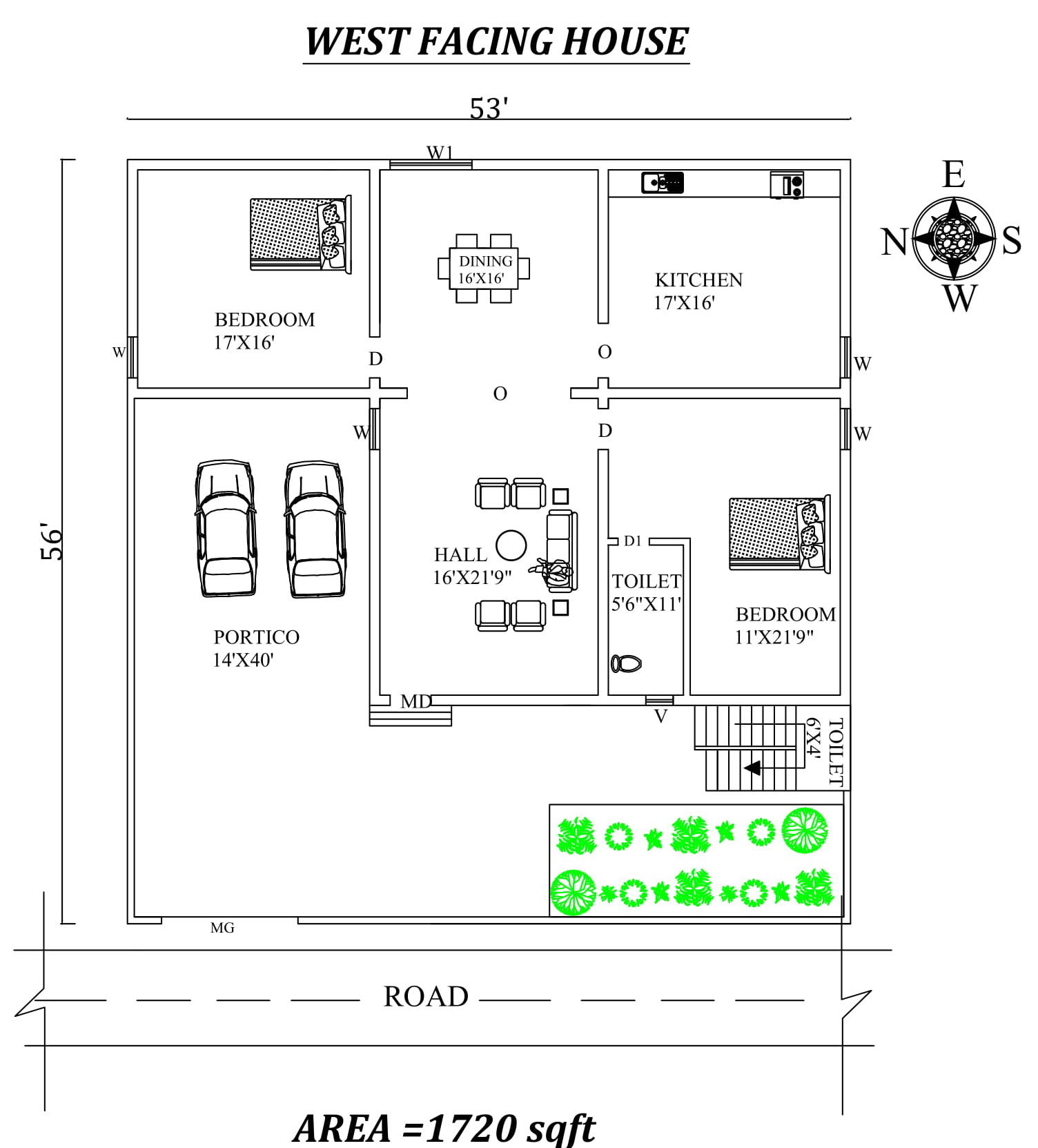
Autocad Drawing file shows 53'X56' Marvelous 2bhk West facing House Plan As Per Vastu Shastra. The total buildup area of this house is 1720 sqft. The kitchen is in the Southeast direction. Dining is in the East Direction. The Hall is Placed in the Northwest direction of the house. The master bedroom available in the southwest direction with the attached toilet is in the west direction. kid's bedroom is in the Northeast direction. A staircase is available in the southwest outside of the house. A common toilet is available under the staircase. Portico/car parking is available in the northwest direction of the house. Download Autocad Drawing file and PDF file.

Uploaded by:
AS
SETHUPATHI

