27'6"X61' The Perfect 2bhk East facing House Plan As Per Vastu Shastra.Autocad DWG and Pdf file details.
Description
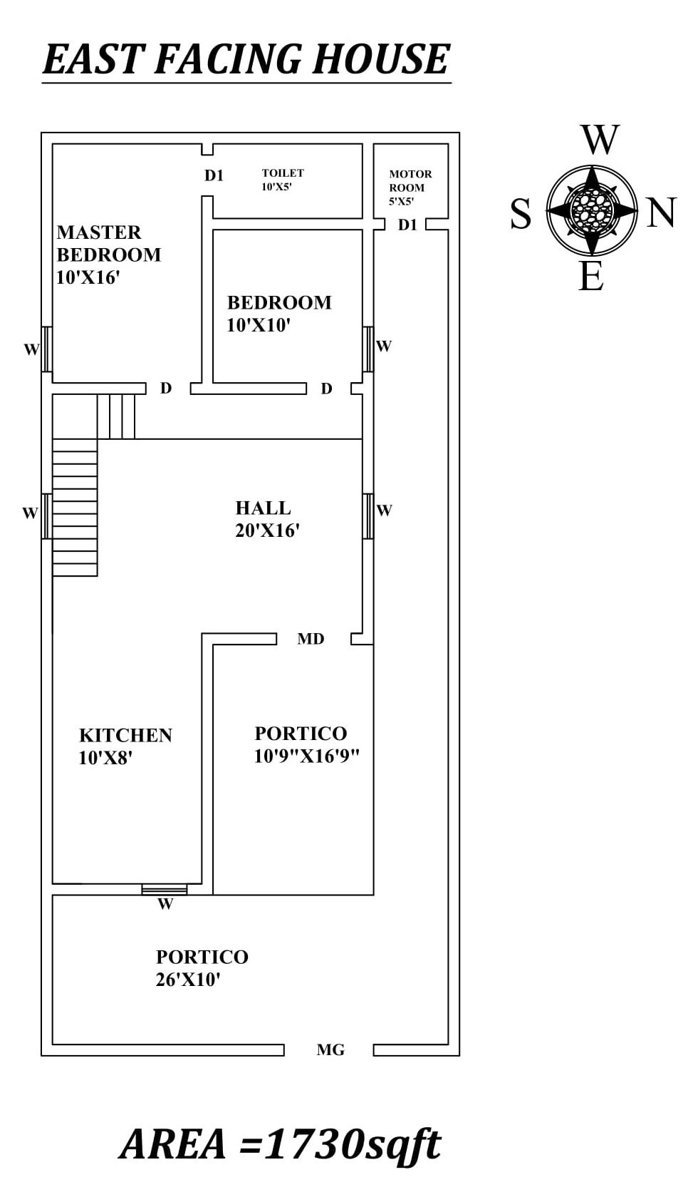
Autocad Drawing file shows 27'6"X61' The Perfect 2bhk East facing House Plan As Per Vastu Shastra. The total buildup area of this house is 1730 sqft. The kitchen is in the Southeast direction The living area is available in the Northeast direction. The master bedroom available in the southwest direction with the attached toilet is in the west direction. kid's bedroom/Drawing room is in the west direction. A staircase is available in the south Direction inside of the house. Portico is available in the northeast direction of the house. Road Available in the east direction.Download Autocad Drawing file and PDF file.

Uploaded by:
AS
SETHUPATHI

