39'X50' 2bhk Awesome South facing House Plan As Per Vastu Shastra,Autocad DWG and Pdf file details.
Description
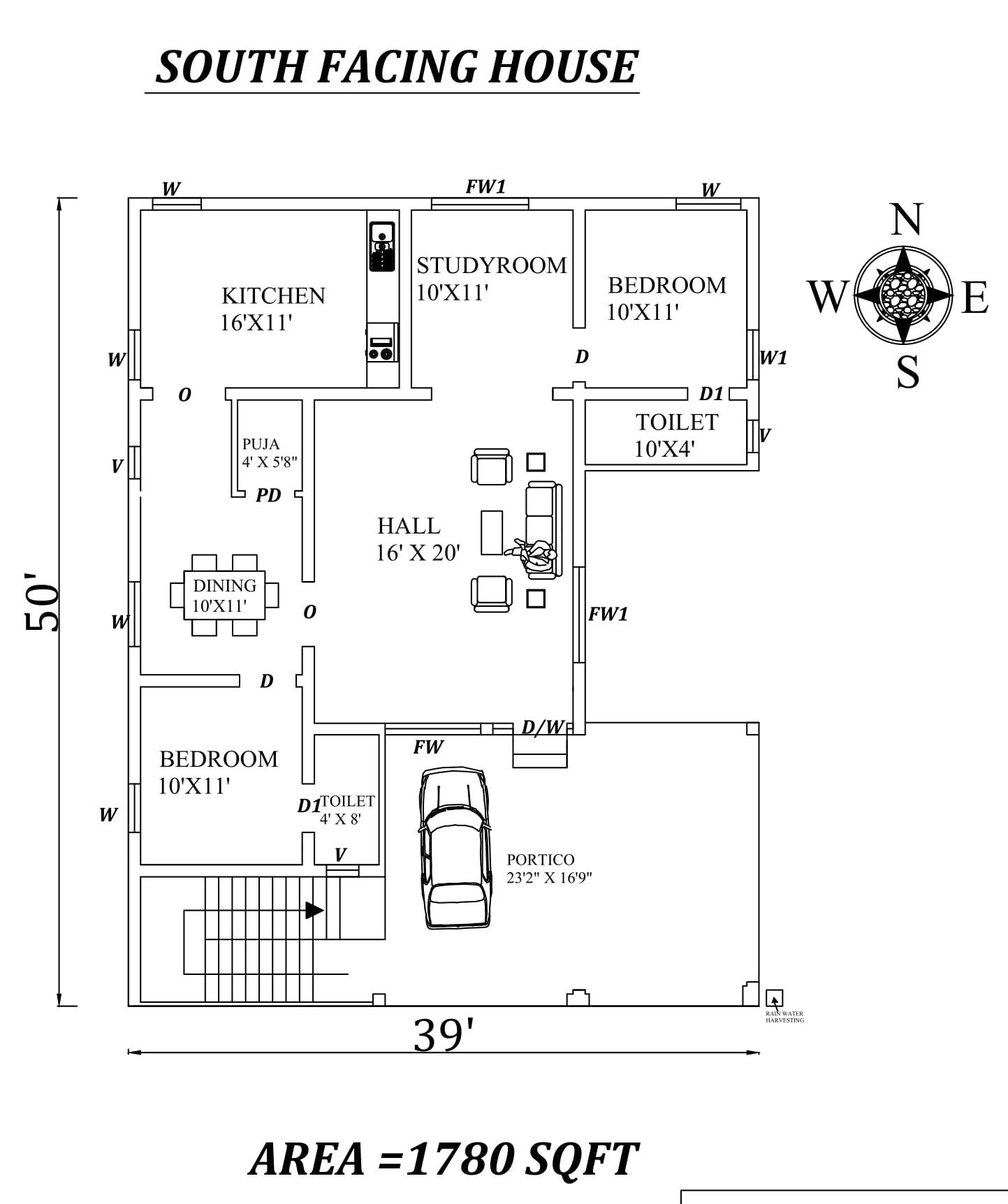
Autocad Drawing file shows39'X50' 2bhk Awesome South facing House Plan As Per Vastu Shastra. The total buildup area of this house is the 1780 sqft. The kitchen is in the northwest direction. Dining near the kitchen is in the west direction. The Hall is Placed in the southeast direction. The master bedroom is available in the southwest direction with the attached toilet is in the south. The kid's bedroom is in the Northeast direction with the attached toilet is in the east. The puja room is in the north. A staircase is available in the southwest outside of the house. The common toilet is available in the southwest direction under stairs. Road Available in the South direction.Download Autocad Drawing file and PDF file.

Uploaded by:
AS
SETHUPATHI

