30'X61' Single bhk West facing House Plan As Per Vastu Shastra,Autocad DWG and Pdf file details.
Description
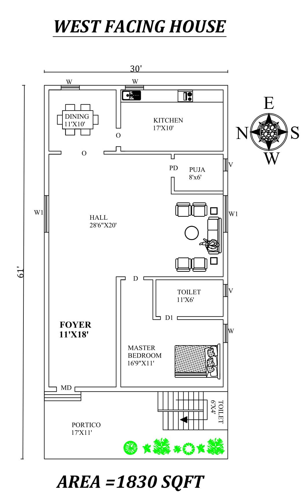
Autocad Drawing file shows30'X61' Single bhk West facing House Plan As Per Vastu Shastra. The total buildup area of this house is 1830 sqft. The kitchen is in the Southeast direction. Dining near the kitchen is in the northeast direction. The Hall is available in the northwest direction. The Master bedroom is available in the Southwest direction with the attached toilet is in the south direction. The puja room is in the south. A staircase is available on the southwest outside of the house. Portico is available in the northwest direction of the house. Road Available in the west direction.Download Autocad Drawing file and PDF file.

Uploaded by:
AS
SETHUPATHI

