34'6"X 76' Beautiful 3bhk West facing House Plan As Per Vastu Shastra,Autocad DWG and Pdf file details.
Description
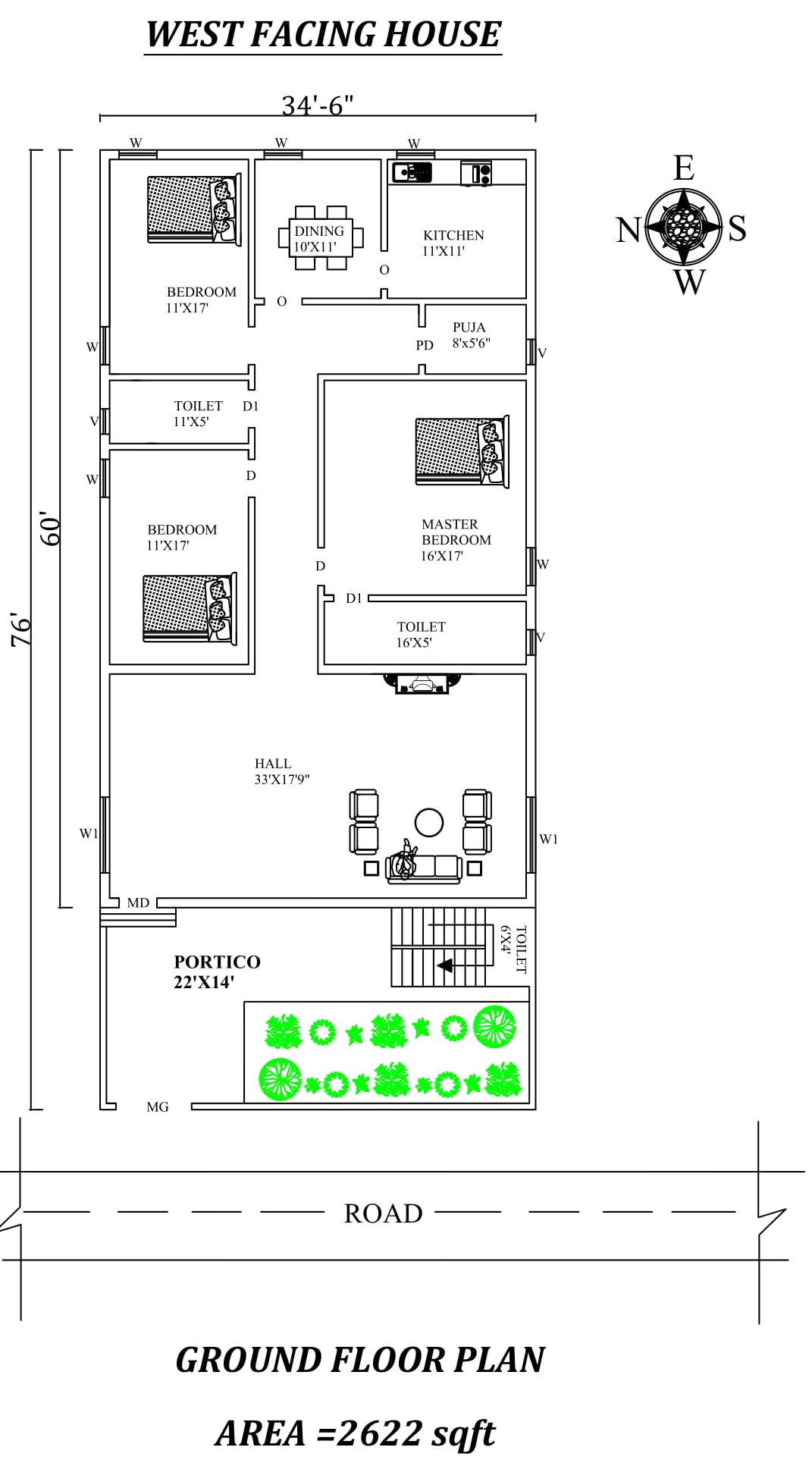
Autocad Drawing file shows 34'6"X 76' Beautiful 3bhk West facing House Plan As Per Vastu Shastra. The total buildup area of this house is 2622 sqft. The kitchen is in the Southeast direction. Dining is in the East Direction. The Hall is Placed in the west direction of the house. The master bedroom available in the south direction with the attached toilet is in the south direction. kid's bedroom is in the Northeast direction. The guest bedroom is available in the north direction. The common toilet is placed in the North direction. A staircase is available on the southwest outside of the house. Download Autocad Drawing file and PDF file.

Uploaded by:
AS
SETHUPATHI
