60'X 65'6" Beautiful 3bhk West facing House Plan As Per Vastu Shastra,Autocad DWG and Pdf file details.
Description
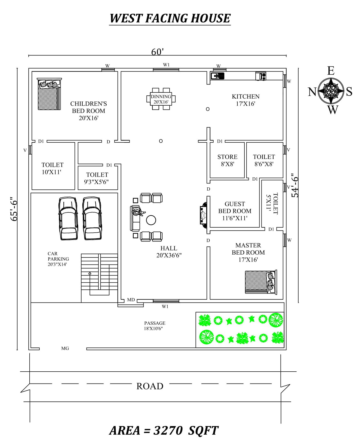
Autocad Drawing file shows 60'X 65'6" Beautiful 3bhk West facing House Plan As Per Vastu Shastra. The total buildup area of this house is 3270 sqft. The kitchen is in the Southeast direction. The storeroom is available near the kitchen is in the south direction. Dining is in the East Direction. The Hall is Placed in the northwest direction of the house. The master bedroom available in the southwest direction with the attached toilet is in the south direction. kid's bedroom is in the Northeast direction with the attached toilet in the north. The guest bedroom is available in the south direction with the attached toilet is in the south direction. The common toilet is in the west. A staircase is available on the northwest outside of the house.carparking is in the northwest. Download Autocad Drawing file and PDF file.

Uploaded by:
AS
SETHUPATHI

