46'X 60'6" Amazing3bhk West facing House Plan As Per Vastu Shastra,Autocad DWG and Pdf file details.

46'X 60'6" Amazing3bhk West facing House Plan As Per Vastu Shastra,Autocad DWG and Pdf file details.
Profile

Uploaded by:

AS

SETHUPATHI

Description
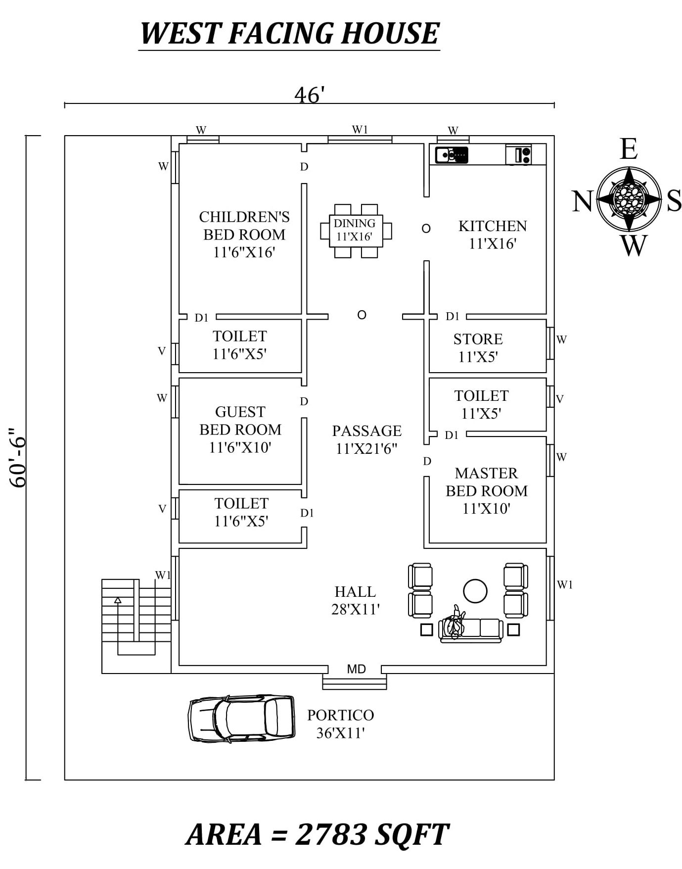
Autocad Drawing file shows 46'X 60'6" Amazing3bhk West facing House Plan As Per Vastu Shastra. The total buildup area of this house is 2783 sqft. The kitchen is in the Southeast direction. The storeroom is in the south. The utility is available near the kitchen is in the southeast direction. Dining is in the East Direction. The Hall is Placed in the west direction of the house. The master bedroom available in the south direction with the attached toilet is in the south direction. kid's bedroom is in the Northeast direction with the attached toilet in the north. The guest bedroom is available in the north direction with the attached toilet in the north. A staircase is available on the northwest outside of the house. Download Autocad Drawing file and PDF file.
Profile

Uploaded by:

AS

SETHUPATHI

find Latest

Related Files

WhatsApp Chat