44'X100' The Perfect 2bhk East and north facing row House Plan As Per Vastu Shastra,Autocad DWG and Pdf file details.
Description
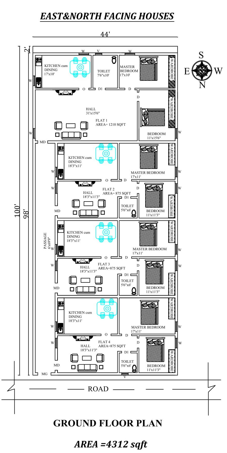
Autocad Drawing file shows 44'X100' The Perfect 2bhk East and north facing row House Plan As Per Vastu Shastra. The total buildup area of this house is 4312 sqft. DWG file contains four-row flats in that 3 flats facing east and 1 flat facing north. East facing flats sizes are the same. In East facing flats, The kitchen cum dining is in the Southeast direction. The living area is available in the Northeast direction. The master bedroom is available in the southwest direction. kid's bedroom/Drawing room is in the northwest direction. The common toilet is available in the north. In north-facing flat, The kitchen cum dining is in the Southeast direction. The living area is available in the Northeast direction. The master bedroom is available in the southwest direction. kid's bedroom/Drawing room is in the northwest direction. The common toilet is available in the south. Road Available in the north direction.Download Autocad Drawing file and PDF file.

Uploaded by:
AS
SETHUPATHI

