45'X127'9" The Perfect 2bhk East facing Apartment House Plan As Per Vastu Shastra. Autocad DWG and Pdf file details.
Description
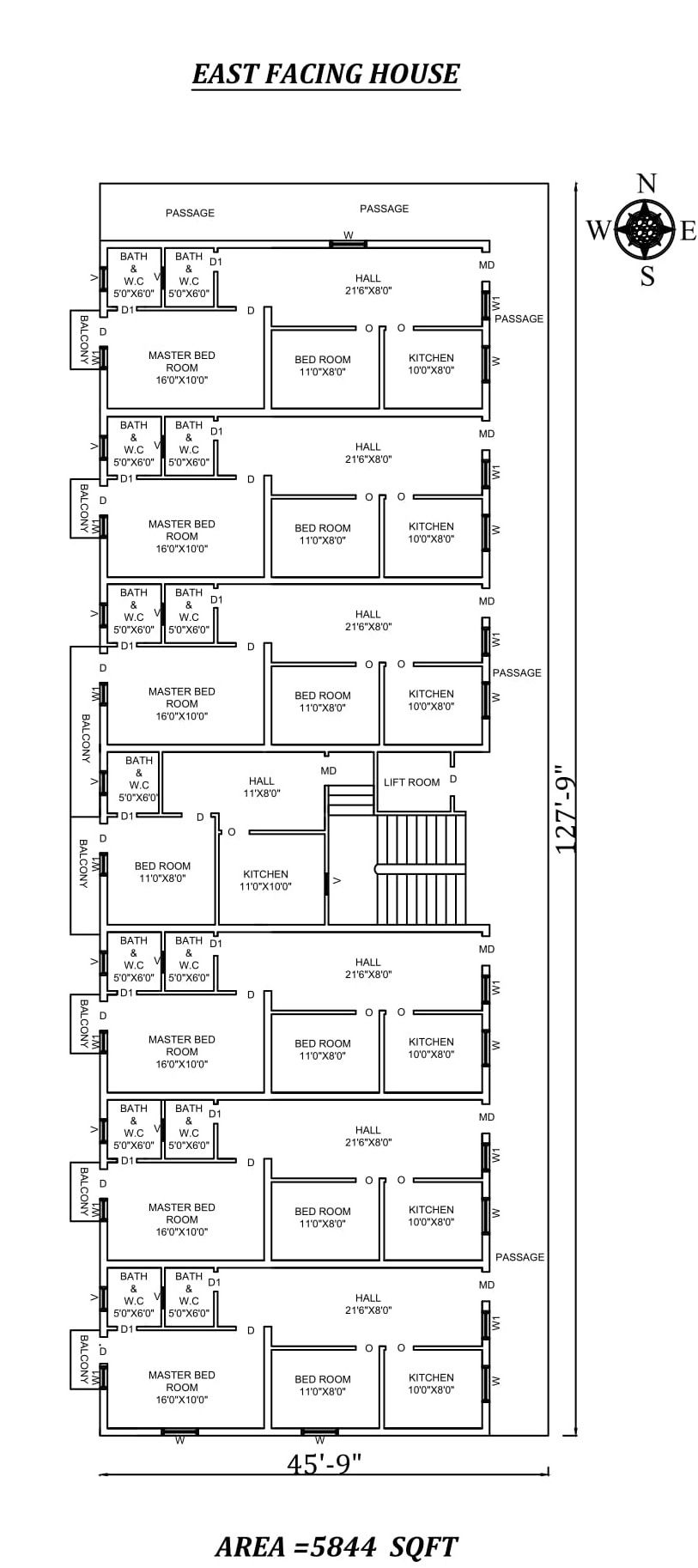
Autocad Drawing file shows 45'X127'9" The Perfect 2bhk East facing Apartment House Plan As Per Vastu Shastra. The total buildup area of this house is 5844 sqft. DWG file contains an apartment house plan . there are seven attached flats in the drawing, all flats having the same sizes. The kitchen is in the Southeast direction. The living area is available in the Northeast direction. The master bedroom is available in the southwest direction with the attached toilet is in the northwest. kid's bedroom/Drawing room is in the south direction. The common toilet is available in the west. A staircase and lift are available in the west Direction inside of the house. Road Available in the east direction.Download Autocad Drawing file and PDF file.

Uploaded by:
AS
SETHUPATHI

