20' X 33' House Plan Complete Drawing DWG File
Description
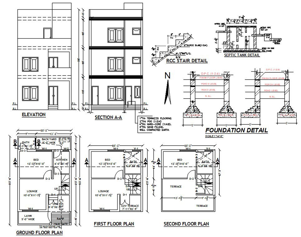
20' x 33' feet residence house ground floor plan and first-floor plan design that shows 2 bedrooms with dimension detail. download house floor plan and master plan drawing AutoCAD file.
Residential house with elevation and section in AutoCAD which provide detail of drawing room, bedroom, kitchen, dining room, bathroom, toilet, it also gives detail of floor level.
Uploaded by:
Muhammad
Zubair

