LOGIN
HOME
CATEGORIES
UPLOAD FILE
PRICING
HOUSE PLAN
ABOUT US
CONTACT US
House Detail
Home
Categories
Architecture
House Plan
House Detail
Uploaded by:
Harriet
Burrows
View Profile
View Profile
Description
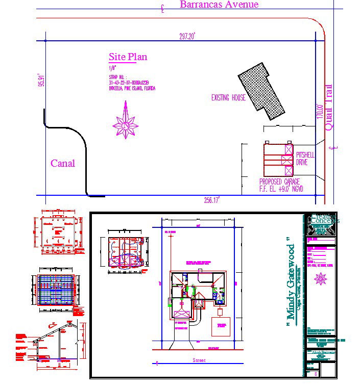
Structure detail, Foundation detail, Site plan, Roof plan, Electric lay-out plan, etc detail.
File Type:
DWG
File Size:
—
Category::
Architecture
Sub Category::
House Plan
type:
Gold
Uploaded by:
Harriet
Burrows
View Profile
Download
Add to libary
find Latest
Related
Files