LOGIN
HOME
CATEGORIES
UPLOAD FILE
PRICING
HOUSE PLAN
ABOUT US
CONTACT US
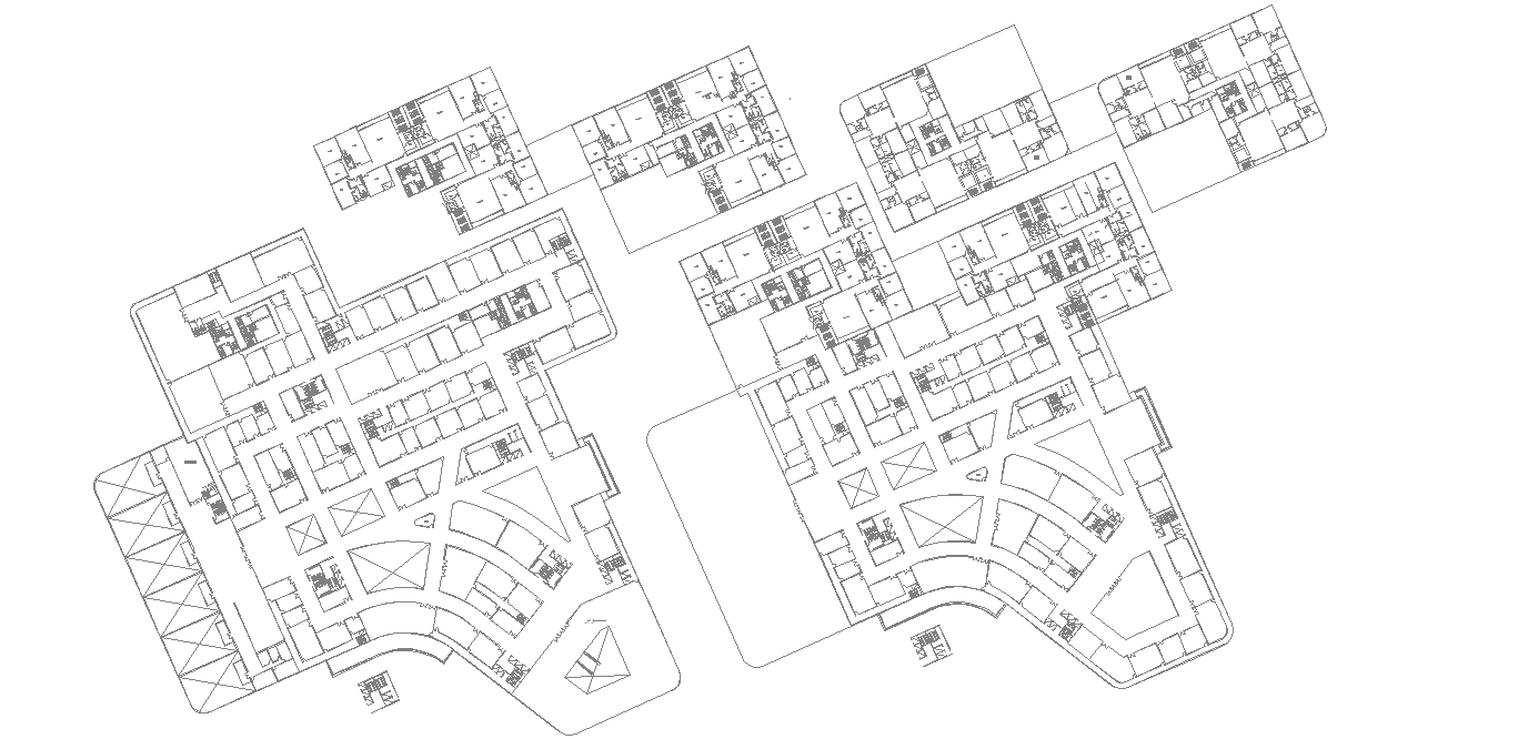
Land plotting Layout design DWG file
Home
Categories
Urban Design
Town Design And Planning
Land plotting Layout design DWG file
Uploaded by:
AS
SETHUPATHI
View Profile
View Profile
Description
Land plotting layout design available in this drawing file. where different plot sizes available. to see the full layout plan download DWG file.
File Type:
DWG
File Size:
1.2 MB
Category::
Urban Design
Sub Category::
Town Design And Planning
type:
Gold
Uploaded by:
AS
SETHUPATHI
View Profile
Download
Add to libary
find Latest
Related
Files