Another type of electric room section and elevation.Download Autocad DWG file.
Description
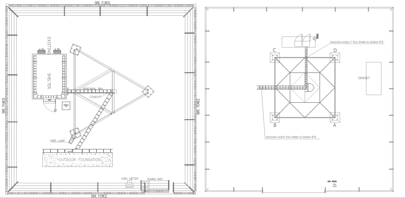
Another electrical drawing file contains the section and elevation design diagram of the electric machine room with BRC Fencing on the compound wall all around for safety. This type is a little different , Outdoor Foundation, Horizontal conduit tray is there, Anaconda conduit 1st is connected from shelter to outdoor BTS. One Genset is available inside the machine room. Download the DWG Autocad file.

Uploaded by:
AS
SETHUPATHI

