Electric room design with BRC Fencing, Download DWG file.
Description
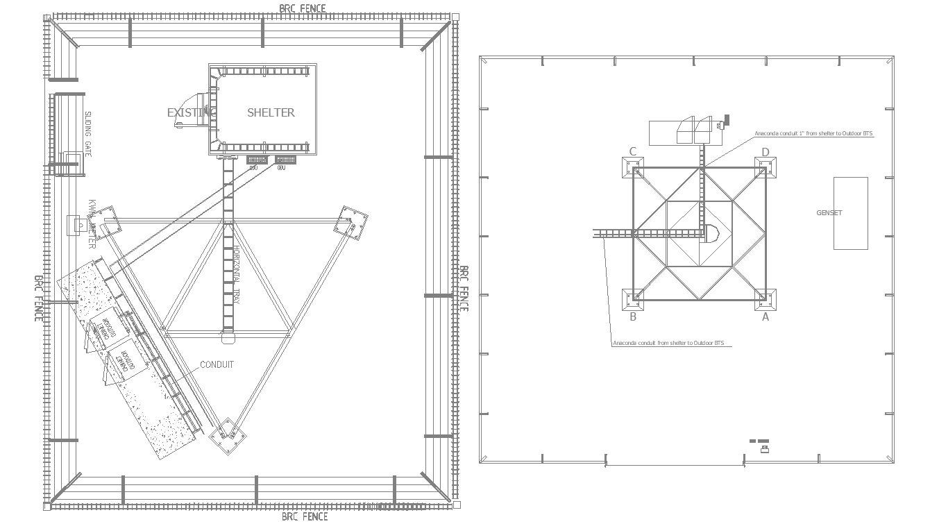
Autocad drawing file contains a design diagram of the other different type of electric machine room with BRC Fencing on the compound wall all around for safety. Outdoor Foundation, two existing outdoor, Horizontal conduit tray is there, Anaconda conduit 1st is connected from shelter to outdoor BTS. One Genset is available inside the machine room. Download the DWG Autocad file.

Uploaded by:
AS
SETHUPATHI

