Sectional details of electrical pole, Download DWG file
Description
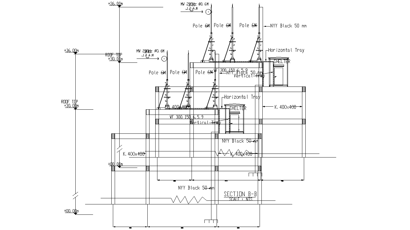
Sectional details of the electrical pole available in this Autocad drawing file.two shelters and six electric poles available in this drawing.Both vertical tray and horizontal tray available here. rooftop height is 30m and pole height is 6m.download DWG file.

Uploaded by:
AS
SETHUPATHI

