Site layout of Mini tower design,Download Autocad Drawing file.
Description
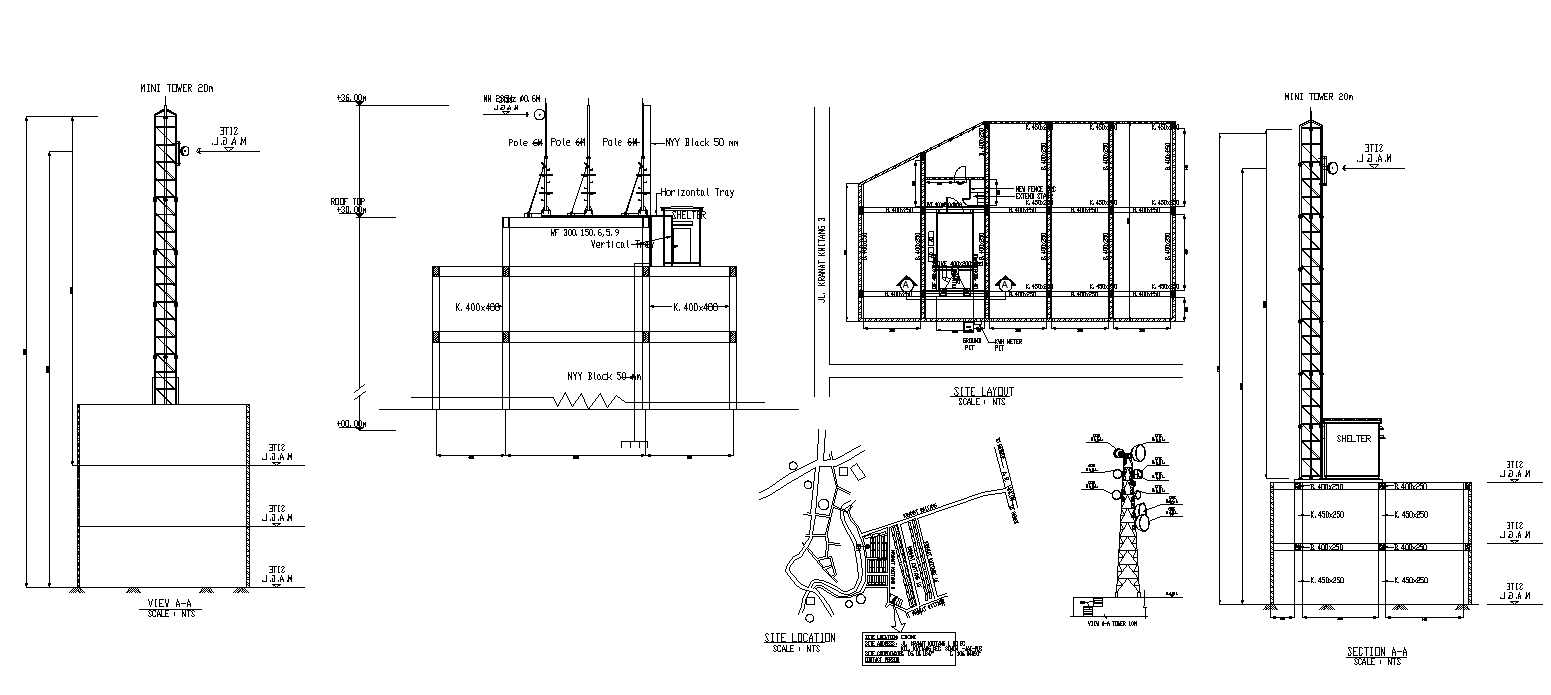
Drawing file of site layout plan for Mini tower at the height of 27000mm with one shelter attached.Antenna site details mentioned in this drawing. This mini-tower is placed over the G+2 building. Total of eight antennae's placed on this mini tower. download the DWG file.

Uploaded by:
AS
SETHUPATHI

