G plus1 School Building Floor Plan DWG with Detailed CAD Layout Design
Description
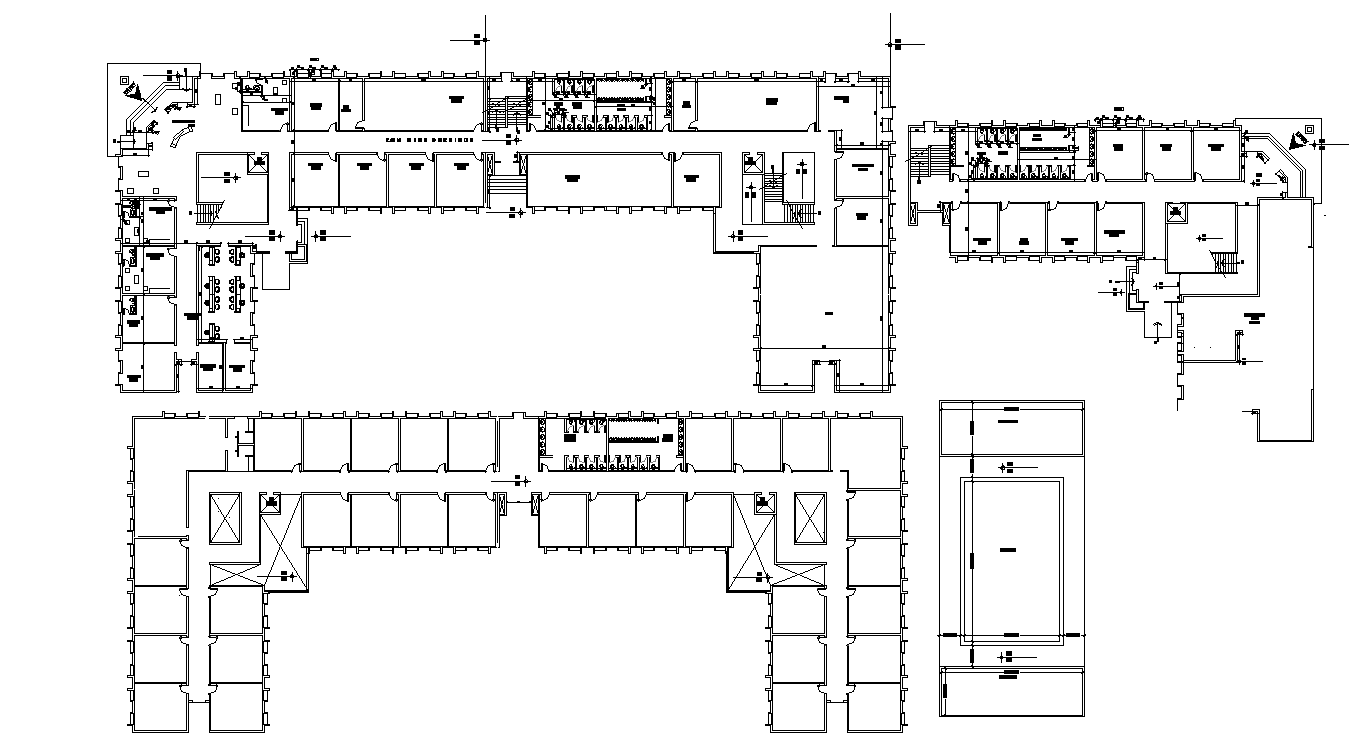
This G+1 school building floor plan DWG file features detailed AutoCAD layout including classrooms, labs, administrative areas, and corridors. The CAD drawing file is perfect for architects and educational planners designing functional and efficient school infrastructure.

Uploaded by:
AS
SETHUPATHI

