2d Drawing of Toilet section and elevation design.Download DWG file.
Description
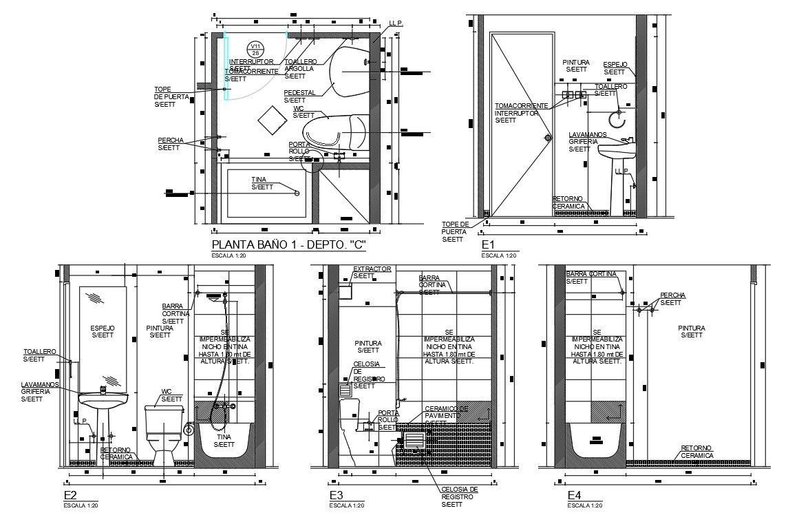
This CAD drawing file contains the Top, front side elevation and section details of the toilet , also 2d models of toilet materials like a washbasin, western toilet, shower, and pipe connection are given in this Autocad DWG file. To get those models to download the AutoCAD DWG file.

Uploaded by:
AS
SETHUPATHI

