All sides elevation design of toilet,Download DWg file.
Description
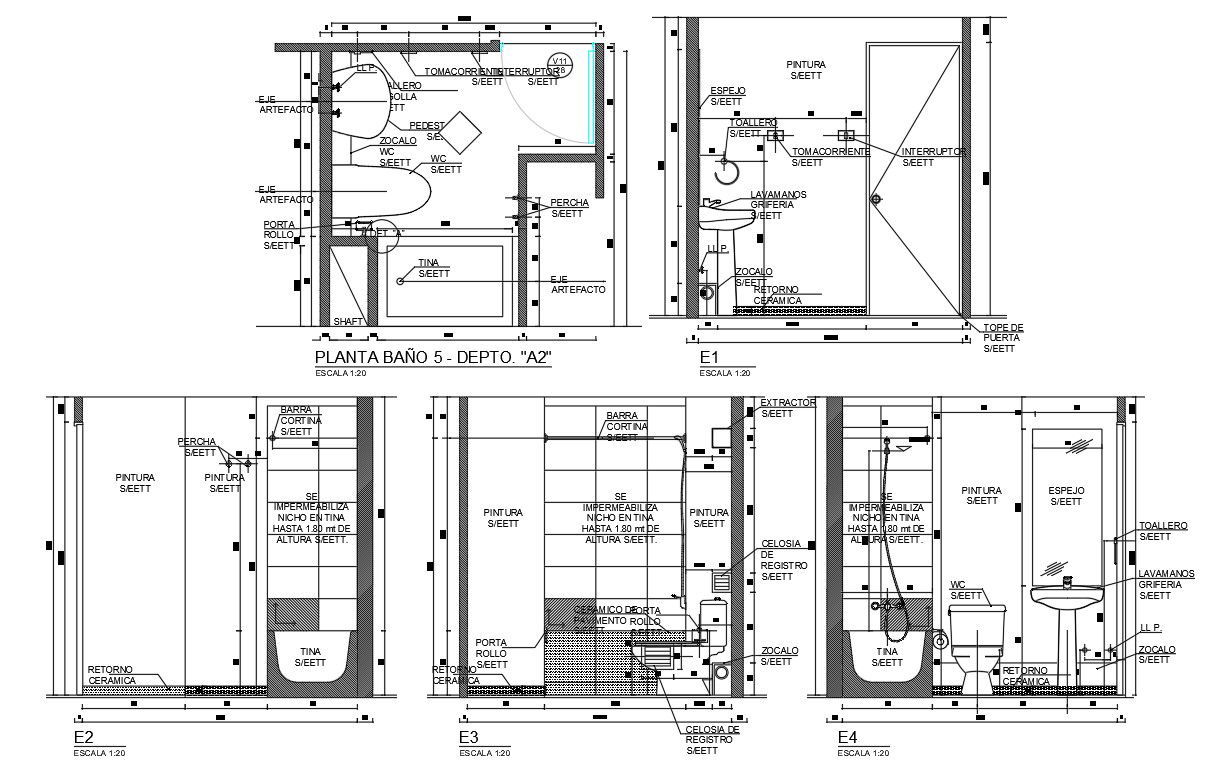
This AutoCAD drawing file contains the Elevation deisgn of Toilet. Top, front side elevation and section details, also 2d models of toilet sanitary wares like a washbasin, western toilet, shower, and pipe connection are given in this Autocad DWG file. To get those models to download the AutoCAD DWG file.

Uploaded by:
AS
SETHUPATHI

