overhead water tank and septic tank section plan details, Download DWG file.
Description
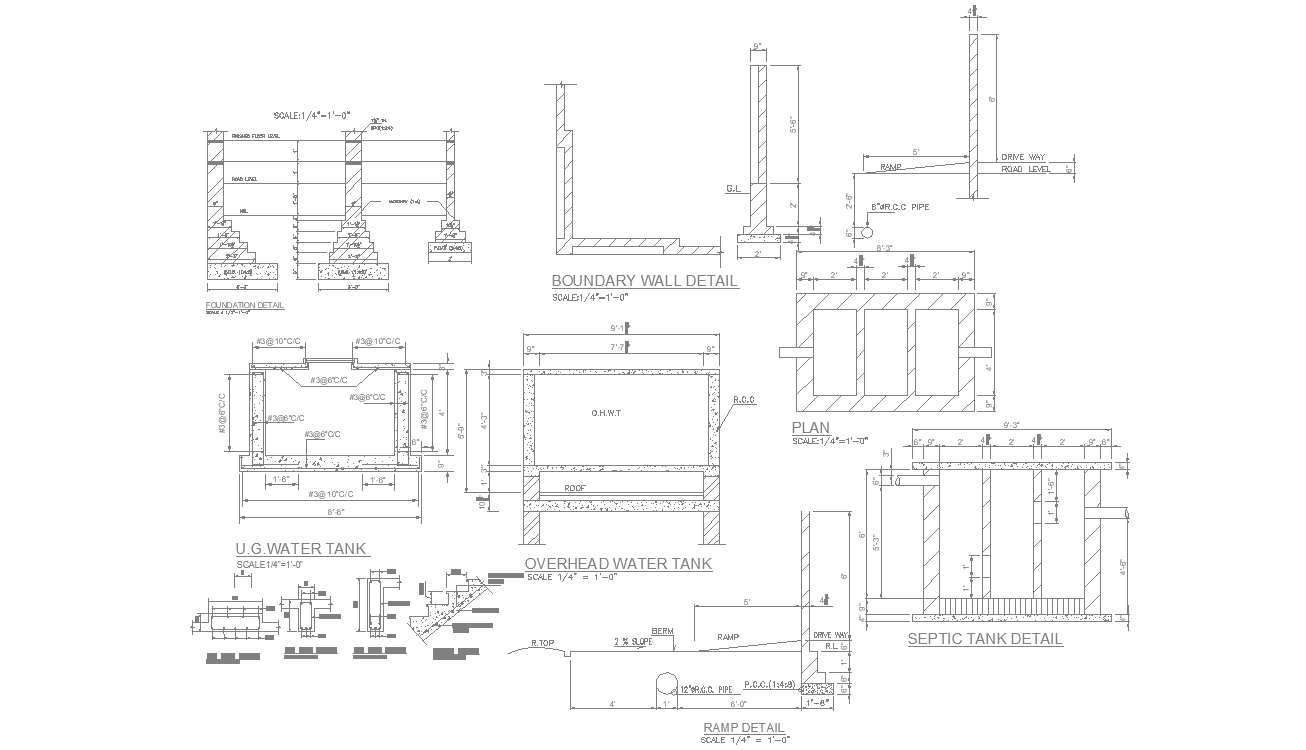
Sectional Details of the overhead water tank and septic tank, Boundary wall,U.G water tank, Foundation and ramp details are explained in this drawing. Download the DWG file.RC foundation sectional details are given in this drawing file. Download the DWG AutoCAD file.

Uploaded by:
AS
SETHUPATHI

