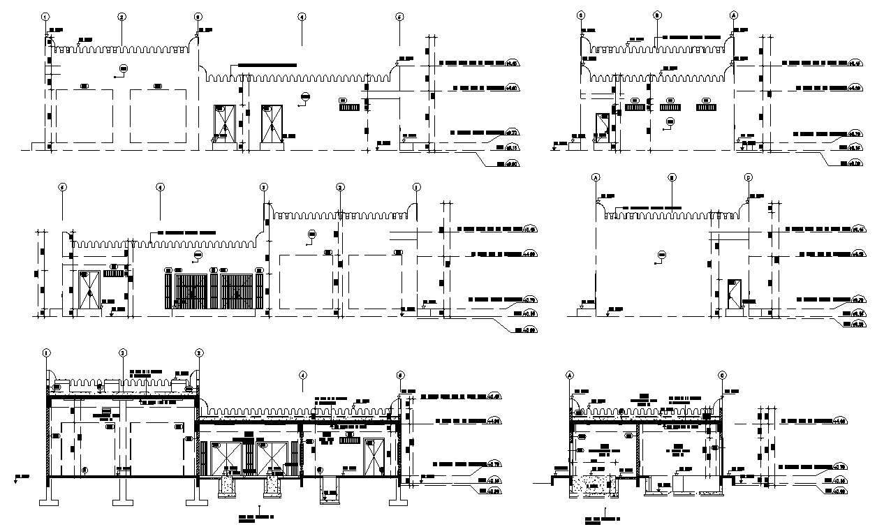
Electrical machinery room Section and elevation Drawing details,Download Autocad DWG file.
Description
DWg file contains the details of the Electrical machinery room Section and Elevation Drawing, Machinaries like a transformer, LV panel, Generators, and MV are placed in this building. Building section and elevation design available in this drawing file. download Autocad DWG file.

Uploaded by:
AS
SETHUPATHI

