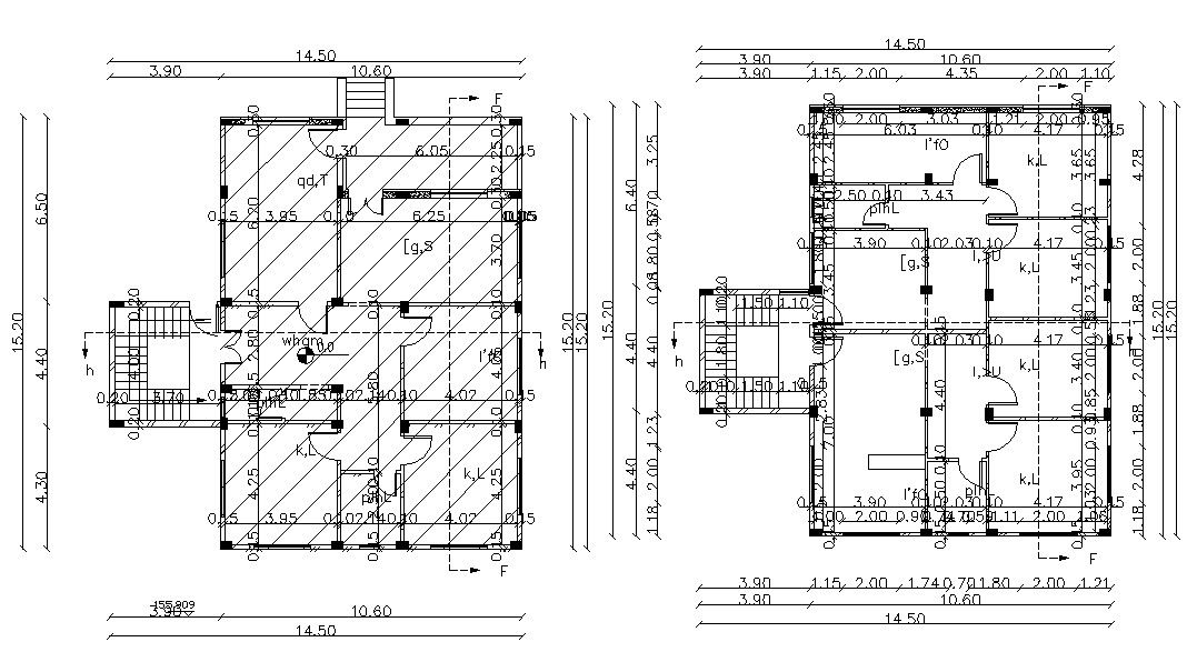
14.50 X 15.20 Meter Residential House Floor Plan DWG File
Description
The modern architecture drawing floor plan arrangement living area, kitchen, washroom, pooja room, store room, bedroom, toilet with dimension, column, door, window and more details. download AutoCAD file.
Uploaded by:

