70'X115' 4 BHK House plan Drawing.Download Autocad DWG file.
Description
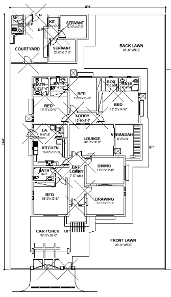
70'X115' 4 BHK House plan Drawing available in this AutoCAD DWG file. Servant room kitchen and courtyard are the available backsides of the house. On the ground floor Master bedroom with the attached toilet, Kid's bedroom with the attached toilet, Guest bedroom with the attached toilet, single bedroom, Lounge, Lawn, common toilet, porch, Drawing room, Kitchen, Dining is available. Download Autocad DWG file.

Uploaded by:
AS
SETHUPATHI

