Working Drawing Structural Foundation Layout

Working Drawing Structural Foundation Layout
Profile

Uploaded by:

Poonam

Description
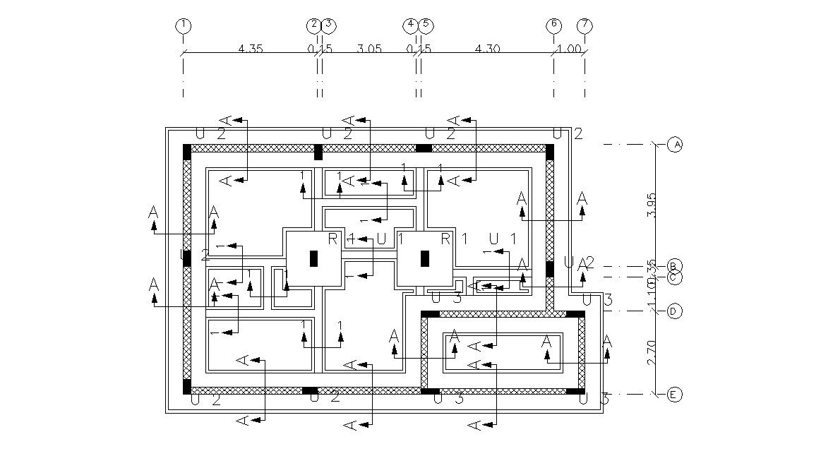
2d drawing include column and beam details, section line, centerline with dimension details, wall details and other details. download CAD foundation layout file.
Profile

Uploaded by:

Poonam

find Latest

Related Files

WhatsApp Chat