LOGIN
HOME
CATEGORIES
UPLOAD FILE
PRICING
HOUSE PLAN
ABOUT US
CONTACT US
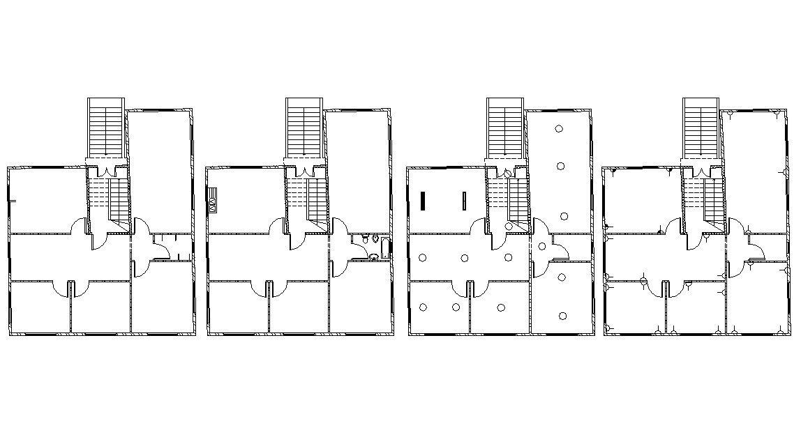
Bungalow House Electrical Layout DWG File
Home
Categories
Electrical
Light Fixtures & Fittings
Bungalow House Electrical Layout DWG File
Uploaded by:
Poonam
View Profile
View Profile
Description
The drawing electrical layout provide plug point, exhaust fan point, switchboards, fan point and more details. this is download drawing electrical layout design.
File Type:
DWG
File Size:
103 KB
Category::
Electrical
Sub Category::
Light Fixtures & Fittings
type:
Gold
Uploaded by:
Poonam
View Profile
Download
Add to libary
find Latest
Related
Files