17'X45' six Different ideas of single Bedroom House plan AutoCAD DWG file,Download Autocad Drawing file.
Description
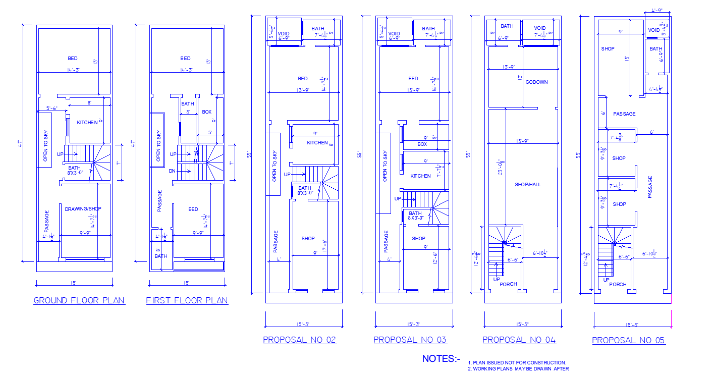
17'X45' sixDifferent ideas of single Bedroom House plan AutoCAD DWG file. In all six plans building area is the same, room allocation and room sizes vary. In all plans master bedroom with attached toilet, Kitchen, Dining, TV Lounge, porch, and Lawn are available. The Staircase is placed inside of the house. Download the AutoCAD Drawing file.

Uploaded by:
AS
SETHUPATHI

