15'X45' single BHK G+2 House plan AutoCAD DWG file.Download the file.
Description
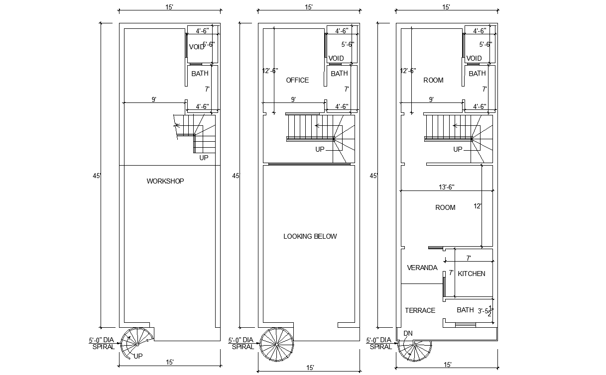
15'X45' single BHK G+2 House plan AutoCAD DWG file. In-ground floor Workshop and toilet available.In the first floor Office and toilet available. On the second floor,master bedroom with attached toilet, Drawing room, Kitchen, Dining, TV Lounge, are available. The Staircase is placed inside of the house. Download the AutoCAD Drawing file.

Uploaded by:
AS
SETHUPATHI

