22'X22' seven different types of single BHK House plan also clinic plan available AutoCAD DWG file.
Description
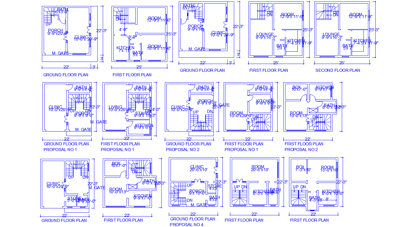
22'X22' seven different types of single BHK House plan also clinic plan available AutoCAD DWG file. In all seven plans building area is the same, room allocation and room sizes vary. In all plans master bedroom with attached toilet, Kitchen, are available. Ground and first-floor plan available. The Staircase is placed inside of the house. Download the AutoCAD Drawing file.

Uploaded by:
AS
SETHUPATHI

