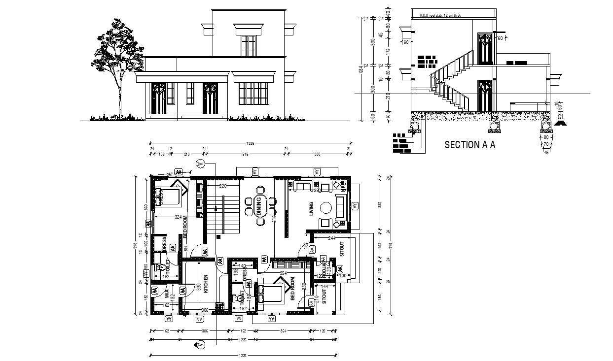
Ground floor and single room first-floor 2bhk house plan DWG file.
Description
Ground floor and single room first-floor 2bhk house plan DWG file. In this house plans Master bedroom with the attached toilet, Kid'sbedroom with the attached toilet Hall, storeroom, common toilet, puja room, Drawing room, Kitchen and dining room is available. The Staircase is available inside of the house. Download Autocad DWG file.

Uploaded by:
AS
SETHUPATHI

