90'X50' 3bedroom Luxury Ground floor House plan AutoCAD DWG file.
Description
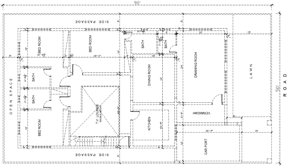
90'X50' 3bedroom Luxury Ground floor House plan AutoCAD DWG file. In this plan master bedroom with attached toilet, kid's bedroom with attached toilet, Guest with attached toilet, Drawing room, Kitchen, Dining, TV Lounge, porch, and Lawn are available. The Staircase is placed inside of the house. Download the AutoCAD Drawing file.

Uploaded by:
AS
SETHUPATHI

