AutoCAD Drawing file of Public toilet .Download the DWG file.
Description
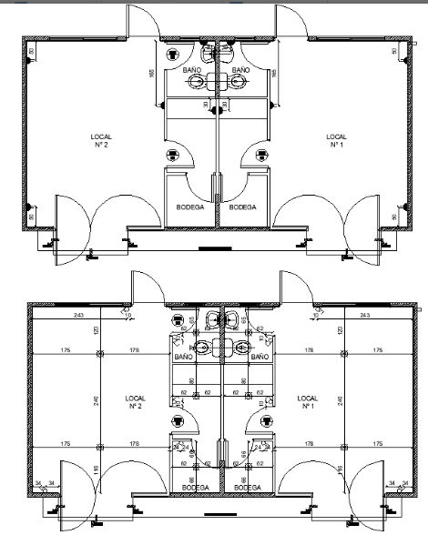
AutoCAD Drawing file of Public toilet. Drawing file giving the details and dimensions of a public toilet. total of four divisions of WC available in this drawing.In that two western sitting toilets available and two bathrooms available. Download the DWG file.

Uploaded by:
AS
SETHUPATHI

