30'X75'Two-bedroom Spacious G+1House plan with section and elevation AutoCAD DWG file.
Description
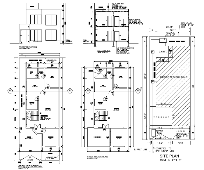
30'X75'Two-bedroom Spacious G+1House plan with section and elevation AutoCAD DWG file. In this plan master bedroom with attached toilet, kid's bedroom with attached toilet, Drawing room, Kitchen, Dining, TV Lounge, porch, and Lawn are available. The Staircase is placed inside of the house. Download the AutoCAD Drawing file.

Uploaded by:
AS
SETHUPATHI

