Electric board connection on wall, Download the DWG file.
Description
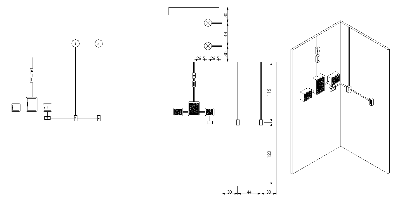
The Autocad Drawing file shows the details of the Electric board connection on the wall, Dimension marked from the floor level also from the ceiling level dimension mentioned in this drawing file. three small board and three big board connection details were given. Download the DWG file.

Uploaded by:
AS
SETHUPATHI
