Floor plans,section and elevation details of ignition oil pump house.Download AutoCAD DWG file.
Description
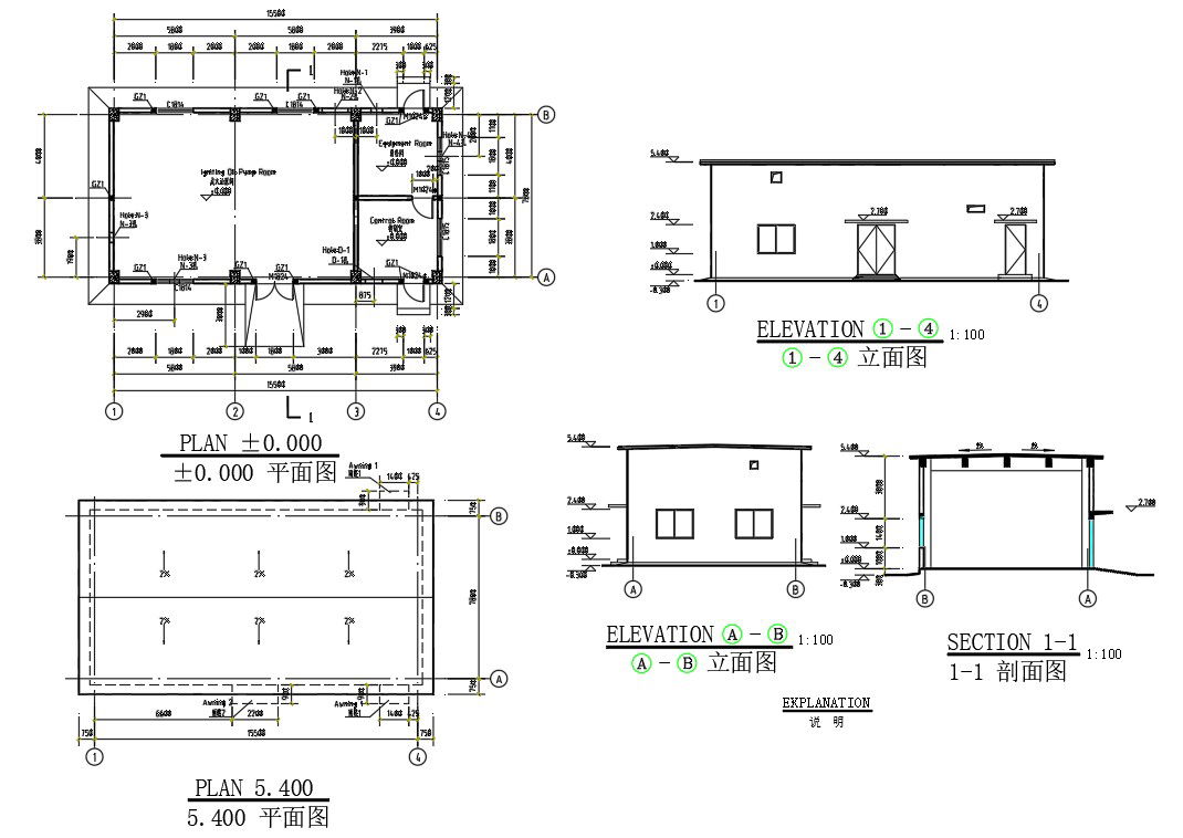
Floor plans, section and elevation details of ignition oil pump house. On the floor plan the details of the Ignition oil pump room, equipment room, control room dimension are mentioned. Also, front and side elevation and section drawings are given in this DWG file. Download the AutoCAD DWG file.

Uploaded by:
AS
SETHUPATHI

