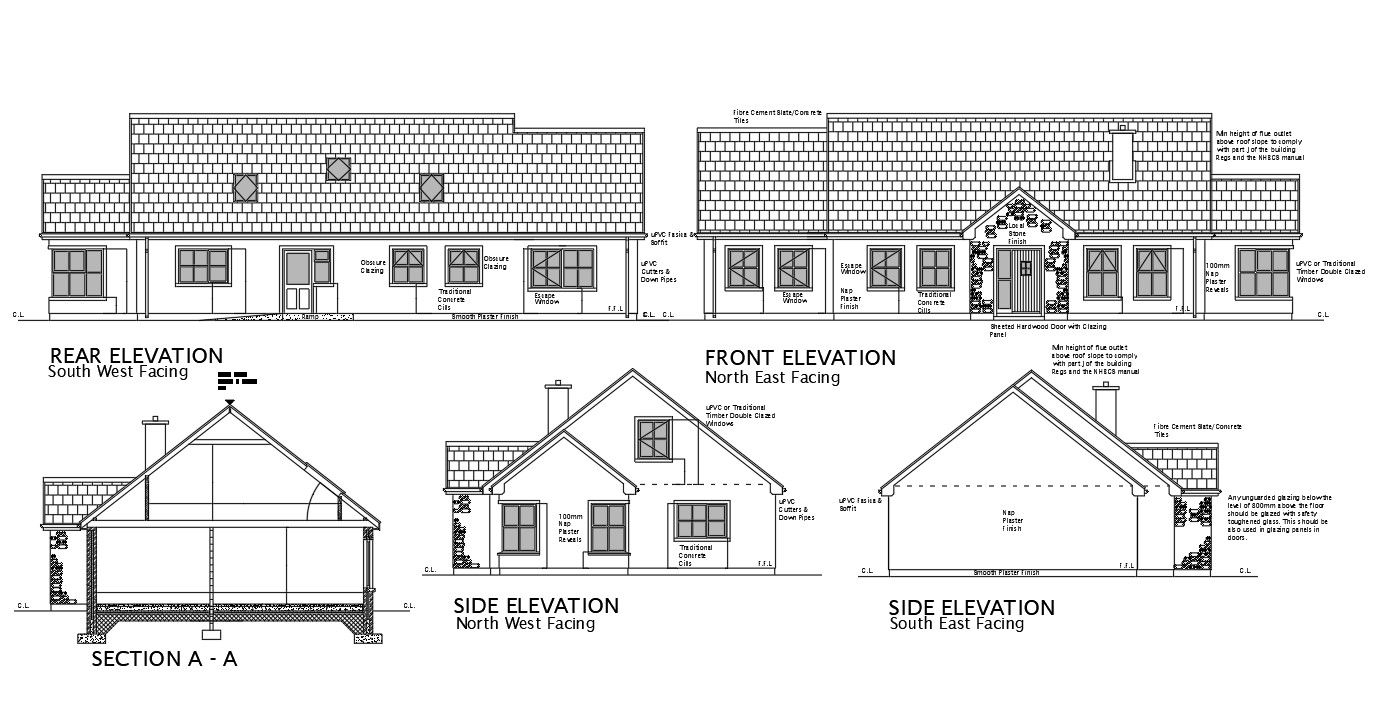
Autocad drawing file shows the detailed plan of the single storey small house plan with front, rear, north and south side elevation and section plan is available. Download the file.
Description
Autocad drawing file shows the detailed plan of the single storey small house plan with front, rear, north and south side elevation, and section plan is available. On the ground floor master bedroom with attached toilet, kid's bedroom, kitchen and dining are available, the staircase is placed inside of the house. Download Autocad DWG file.

Uploaded by:
AS
SETHUPATHI
