DWG file shows Work Drawing of making Modular Kitchen,Download DWG file.
Description
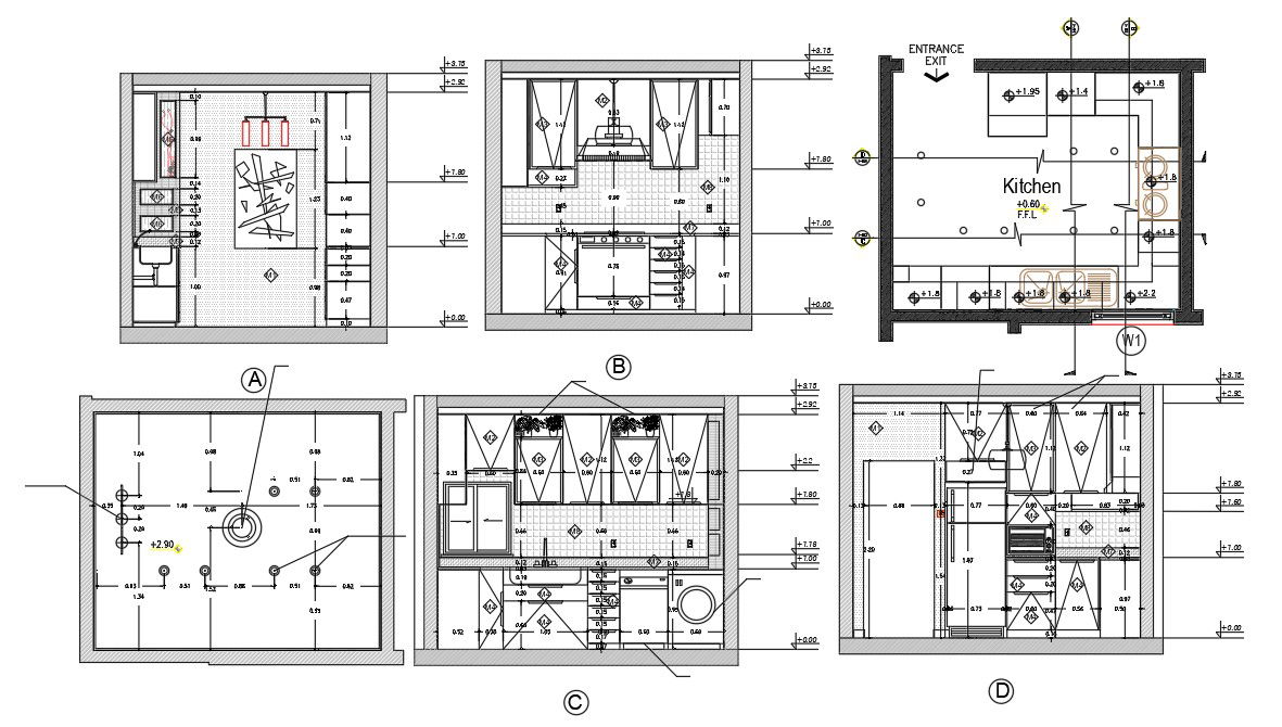
The Autocad DWG file shows Work Drawing of making Modular Kitchen, Rack division details, kitchen window size, Chimney placement distance, dishwasher, Gas stove, micro oven measurement of cutlery racks are given in this drawing file. Download the DWG file.

Uploaded by:
AS
SETHUPATHI

