G+1 three-bedroom house plan AutoCAD DWG file. Download the dwg file.
Description
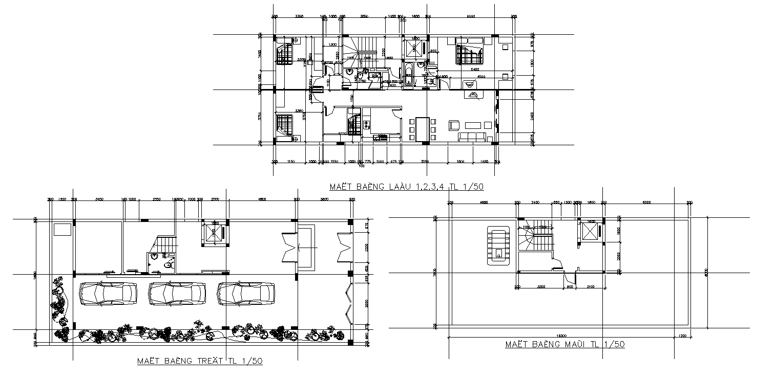
G+1 three-bedroom house plan AutoCAD DWG file. In this Plan the Ground floor having a master bedroom with an attached toilet, Children's bedroom, Guest bedroom Drawing room, Kitchen, Dining, TV Lounge, lobby, porch, and Lawn are available.On the First-floor Single hall with attached toilet available. The staircase is available inside the house. Download the AutoCAD Drawing file.

Uploaded by:
AS
SETHUPATHI
